Минимализм и элегантность. Светлые стены, большие окна

Дом Скандинавский уют -1

 
размеры

500 х 800 см.

 
срок строительства

от 20 дней

 
стоимость

от 2 300 000

Современные модульные дома.
Мы строим долговечные и комфортные дома, которые соответствуют высоким стандартам качества.

Срок изготовления дома, включая проект транспортировку, возведение и отделку - от 2х недель. Используются только безопасные для здоровья, экологичные материалы. По завершении строительства дом полностью готов к жизни. Собственное производство - сами контролируем качество материалов.

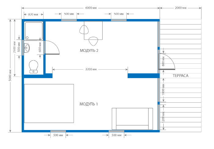
ПЛАНИРОВКа дома

Дом Скандинавский уют -1

Площадь от 30 м2

от 2.300.000 руб

Доставка в подарок

Доставка по городу и от города на расстоянии 50 км БЕСПЛАТНО!

ипотечный калькулятор

укажите параметры и рассчитайте ежемесячный платеж

2 300 000 2 700 000
20% 100%
1
1 30
* Расчёты не являются публичной офертой. Конечные условия кредитования определяются банком после рассмотрения заявки
Пожалуйста, укажите телефон
Согласен на обработку персональных данных
Необходимо согласие

Дом Скандинавский уют -1 комплектация дома:

  • Винтовые или железобетонные сваи

  • Доска камерной сушки хвойных пород (каркас стен, пола, обработаны огнебиозащитным средством для древесины), ветро-влаго защита, пароизоляция Knauf Professional

  • Устройство кровли по древесным пропилам, гидроизоляция, пароизоляция Knauf Professional

  • Санузлы, кухня –принудительная; спальня, кухня гостиная – клапан КИВ-125-3 шт.

  • Проводка электрики по всему дому из качественных материалов. Электрика скрыта внутри каркаса. Розетки, выключатели, светильники и электрощиток с автоматами уже установлены.

  • Электрический конвектор 1500Вт с терморегулятором

ОНЛАЙН КОНСУЛЬТАЦИЯ

получите больше информации о проекте
и задайте свои вопросы

НЕ НАШЛИ ПОДХОДЯЩЕЕ?

Укажите параметры дома, и мы подберем варианты в течение дня бесплатно

Пожалуйста, укажите телефон
Согласен на обработку персональных данных
Необходимо согласие
Написать в мессенджер