Дома с участком и благоустройством
Дома с участком и благоустройством

Участки 4-6 соток, СНТ, твердые дороги

Дома с участком и благоустройством

В стоимость входит: участок, дом, забор по фасаду, ворота, парковочное место, скважина, септик, вводной электрический кабель

 
площадь

24 -70

 
срок строительства

1 - 3 месяца

 
стоимость

3 554 000 - 6 354 000

Каркасный дом — это дом, построенный на основе деревянного или металлического каркаса, который обшивается различными материалами, такими как OSB, гипсокартон или фанера. Внутри каркаса размещается утеплитель, который обеспечивает тепло и звукоизоляцию. Эта технология широко используется по всему миру благодаря своей экономичности, энергоэффективности и простоте возведения.

Модульные дома — это не просто строения, они — воплощение мечты с заботой и вниманием к каждой детали. Для нас каждый клиент — не просто заказчик, а партнер в создании своего уютного дома. Мы вкладываем любовь и профессионализм в каждый этап производства, чтобы ваш дом стал идеальным пространством для жизни.
Ведь ваше удобство и комфорт — наш приоритет.

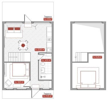
ПЛАНИРОВКа дома

Модуль - дом 24 кв.м.

Площадь от 24 м2

от 3.554.000 руб

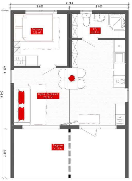
Каркасный дом 44,94 кв.м.

Площадь от 44.94 м2

от 5.200.000 руб

Модуль - дом 51 кв.м.

Площадь от 51 м2

от 5.306.000 руб

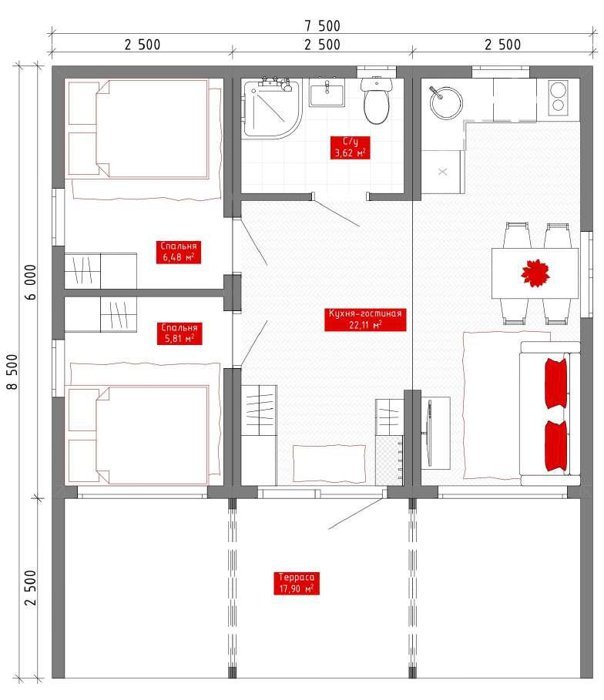
Каркасный дом 53,67 кв.м.

Площадь от 53.67 м2

от 5.700.000 руб

Модуль - дом 64 кв.м.

Площадь от 64 м2

от 6.354.000 руб

А-фрейм 70 кв.м.

Площадь от 70.05 м2

от 5.900.000 руб

ипотечный калькулятор

укажите параметры и рассчитайте ежемесячный платеж

3 600 000 6 400 000
20% 100%
1
1 30
* Расчёты не являются публичной офертой. Конечные условия кредитования определяются банком после рассмотрения заявки
Пожалуйста, укажите телефон
Согласен на обработку персональных данных
Необходимо согласие

Дома с участком и благоустройством комплектация дома:

  • Несущие: Имитация бруса / Виниловый сайдинг; Обрешётка; Гидроветрозащитная мембрана; Доска камерной сушки, дискового распила; Утепление; Пароизоляция Перегородки: Доска 100 мм (камерной сушки, дискового распила)

  • Свайно-ростверковый; Обвязка 150*150; Сваи радиус 89 мм; Сетка оцинкованная ЦПВС от грызунов

  • Двухкамерный стеклопакет, Профиль 70 мм

  • Стропильная система; Покрытие – профлист С20 с толщиной металла 0,45 мм; Утепление – минвата 200 мм

  • Фанера 20 мм; Балки перекрытия; Базальтовый утеплитель; Ветрозащитная мембрана; Обрешётка

ОНЛАЙН КОНСУЛЬТАЦИЯ

получите больше информации о проекте
и задайте свои вопросы

НЕ НАШЛИ ПОДХОДЯЩЕЕ?

Укажите параметры дома, и мы подберем варианты в течение дня бесплатно

Пожалуйста, укажите телефон
Согласен на обработку персональных данных
Необходимо согласие
Написать в мессенджер