57 м2 Каркасный дом 2 спальни

Дом 57 кв.м.

 
площадь

57

 
участок

да

 
стоимость

6000000

Продается дом на участке, участок можете выбрать на выбор, на: на Велижанском (участок 10 соток) , Московском (5 соток) и Салаирском (5 соток) трактах.

Модульные дома — это не просто строения, они — воплощение мечты с заботой и вниманием к каждой детали. Для нас каждый клиент — не просто заказчик, а партнер в создании своего уютного дома. Мы вкладываем любовь и профессионализм в каждый этап производства, чтобы ваш дом стал идеальным пространством для жизни.
Ведь ваше удобство и комфорт — наш приоритет.

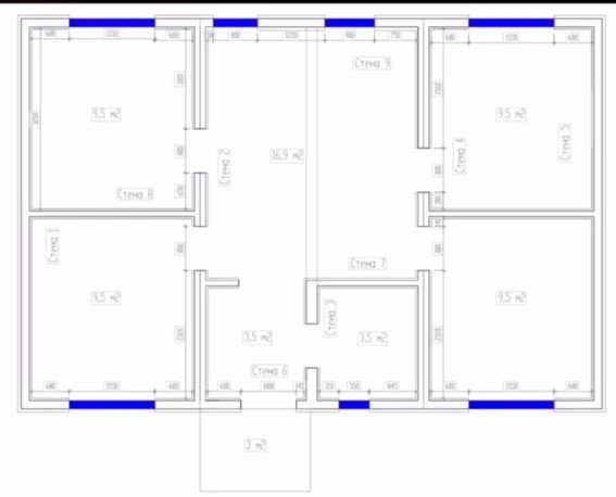
ПЛАНИРОВКа дома

Дом 57 кв.м. с участком

Площадь от 57.5 м2

от 6.000.000 руб

Дом 60 кв.м. без участка

Площадь от 60 м2

от 6.000.000 руб

ипотечный калькулятор

укажите параметры и рассчитайте ежемесячный платеж

6 000 000 6 000 000
20% 100%
1
1 30
* Расчёты не являются публичной офертой. Конечные условия кредитования определяются банком после рассмотрения заявки
Пожалуйста, укажите телефон
Согласен на обработку персональных данных
Необходимо согласие

Дом 57 кв.м. комплектация дома:

Подход индивидуально не только к каждому клиенту, но и к каждому проекту! Чтобы создать пространство, полностью отражающее все ваши пожелания!

Используются материалы, сочетающие в себе высокое качество и заботу об окружающей среде. Используем только экологически чистые материалы, чтобы ваш дом был не только самым красивым, но и безопасным для вас и вашей семьи.


  • Монолитная плита - это единая железобетонная конструкция, расположенная под всей площадью дома на фундаментной подушке. • Универсальность по геологии оснований, хорошая несущая способность, высокая пространственная жёсткость, хорошие изоляционные характеристики, несложная технология возведения, долговечность.

  • Каркас из сухой строганой доски, сорт АБ, 45X145 45X195 мм. Утепление минеральной ватой: 200 мм пол, стены и кровля 150 мм

  • Двухкамерные стеклопакеты. ПВХ двери и окна с двухкамерными стеклопакетами, поворотно-откидные. Межкомнатные двери

  • Имитация бруса на стенах и потолке. Торцевые стены строганая доска 20X195. Ламинат на полу. СУ ПВХ плита в комбинации с имитатором бруса

  • Вся электрика: светильники, розетки, выключатели, электрощиток с автоматами. Разводка труб водопровода, канализации. Приточно-вытяжная вентиляция в каждой комнате.

ОНЛАЙН КОНСУЛЬТАЦИЯ

получите больше информации о проекте
и задайте свои вопросы

НЕ НАШЛИ ПОДХОДЯЩЕЕ?

Укажите параметры дома, и мы подберем варианты в течение дня бесплатно

Пожалуйста, укажите телефон
Согласен на обработку персональных данных
Необходимо согласие
Написать в мессенджер