60 м2 Каркасный дом 2 спальни

Барн Нона 60

Скважина и септик в подарок при покупке дома

 
площадь

60

 
срок строительства

45 дней

 
стоимость

5 800 000

Не используются металлические профили для фасадов, только натуральное дерево. Это даёт возможность с комфортом проводить время в доме и на террасе.

Внутренняя отделка выполняется со скрытой электрической и сантехнической разводкой.
Устанавливаются осветительные приборы, розетки, выключатели, тёплые полы по всему дому, панорамное остекление с выходом на террасу.

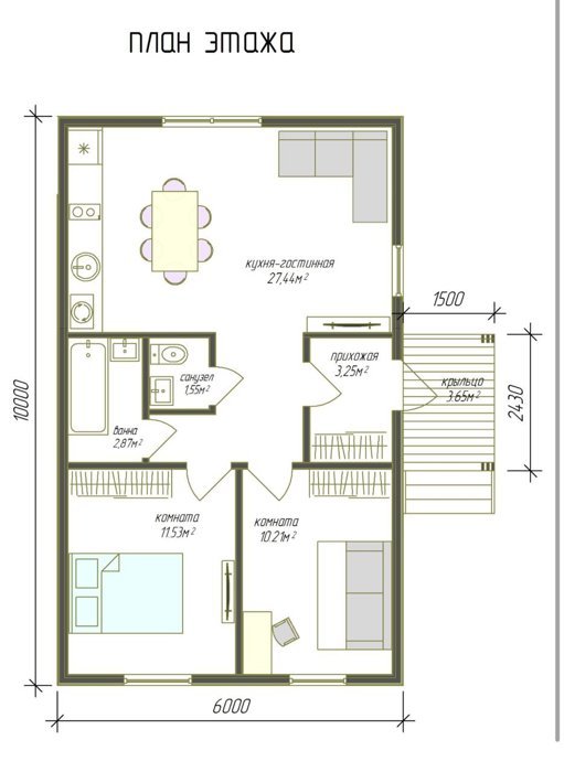
ПЛАНИРОВКа дома

Дом Барн Нона 60

Площадь от 60 м2

от 5.800.000 руб

БЕЗ первоначального взноса!

Отсутствие комиссии банка и издержки по отсутствию ПВ (первоначального взноса)

ипотечный калькулятор

укажите параметры и рассчитайте ежемесячный платеж

5 800 000 5 800 000
20% 100%
1
1 30
* Расчёты не являются публичной офертой. Конечные условия кредитования определяются банком после рассмотрения заявки
Пожалуйста, укажите телефон
Согласен на обработку персональных данных
Необходимо согласие

Барн Нона 60 комплектация дома:

  • Это фундамент из металлических свай с лопастями на концах. Сваи вкручивают в землю как большие шурупы. Они изготавливаются из легированной стали высокого качества. Преимущества свайно-винтового фундамента: • высокая прочность — он не растрескивается как бетонный, не боится снега, дождя и мороза • простота возведения — для его монтажа не требуется копка траншей и котлованов • невысокая цена

  • Основу каркасного дома составляют сухие строганные доски, из которых изготавливаются стойки, косые и поперечные элементы стен. Обязательно проходит термическую обработку, благодаря которой из древесины удаляется лишняя влага. Преимущества материала • высокая плотность • незначительная усадка каркаса • экологичность • ускорение темпов строительства

  • Деревянная отделка. Это отделка внешних стен натуральным деревом, который предварительно обработан лаком.

  • Стены, изготовленные из дерева, не выполняют несущей функции и служат только для разделения помещений. Деревянные межкомнатные стены могут быть сплошными и каркасно-обшивными. Последние отличаются меньшим расходом материала и лёгкостью конструкции. Преимущества деревянных перегородок • изготовлены из экологичного материала • хорошо сохраняют тепло в помещениях • выдерживают навесные приспособления массой до 150 кг

  • При монтаже деревянных междуэтажных перекрытий между стенами укладывают толстые деревянные балки, на которые устанавливают лаги. На лаги, в свою очередь, монтируется пол. Плюсы деревянных перекрытий • простота возведения — для монтажа не нужно привлекать специальную технику • малый вес конструкции • большой выбор пиломатериалов • экологичность • низкая теплопроводность

  • ПВХ-мембрана. Плотный и пластичный рулонный материал. Производится из поливинилхлорида, имеет отличные показатели пожаробезопасности. Среди других преимуществ • небольшой вес, то есть материал не оказывает давления на перекрытия • простой монтаж • прочность и эластичность

ОНЛАЙН КОНСУЛЬТАЦИЯ

получите больше информации о проекте
и задайте свои вопросы

НЕ НАШЛИ ПОДХОДЯЩЕЕ?

Укажите параметры дома, и мы подберем варианты в течение дня бесплатно

Пожалуйста, укажите телефон
Согласен на обработку персональных данных
Необходимо согласие
Написать в мессенджер